Kompaktne linnakodu, mis sobib nii väljakujunenud linnaruumi kui ka arenevasse piirkonda.
Hoones on ühendatud klassikaline vorm kaasaegse materjalikäsitlusega, kus katusekattematerjal katab ka seinasid. Hoonele lisab iseloomu Velux katuseakna ning vertikaalse aknaelemendi lahendus teise korruse vannitoas ning trepihallis.
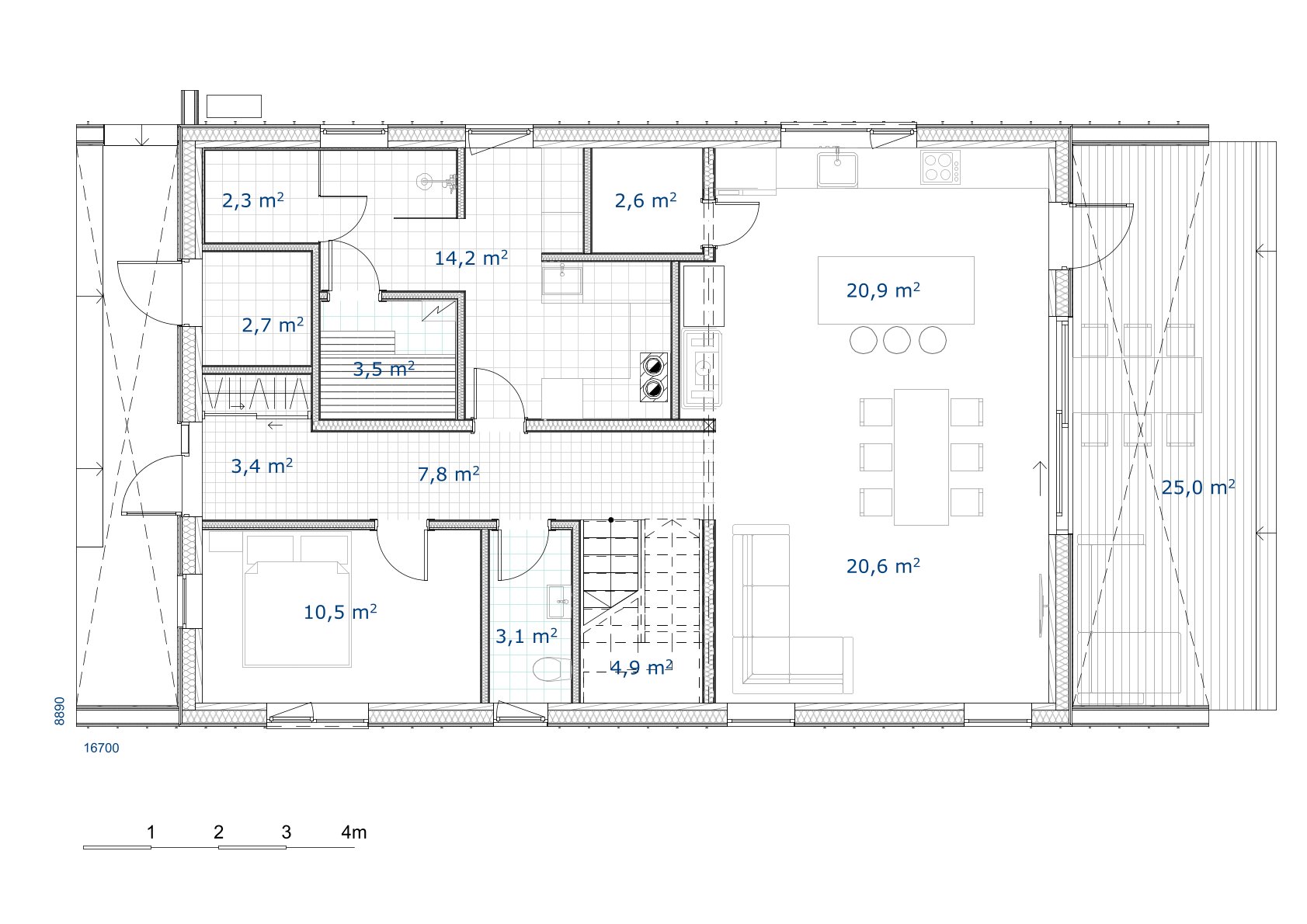
I korrusele on paigutatud abiruumid, avatud elutuba koos köögiga ning üks tuba mille võib kujundada kabinetiks või külalistetoaks. II korrusele on paigutatud pere magamistoad.
Hoone on sobilik 4-5 liikmelisele perekonnale.
Projekti saab ehitada nii liimpalkmajana kui ka CLT-elementmajana. Iga projekt on kohandatav vastavalt teie pere vajadustele, sealhulgas põrandaplaane ja -pinna suurust.
Olete oodatud Finnlogi tasuta konsultatsioonile!



















