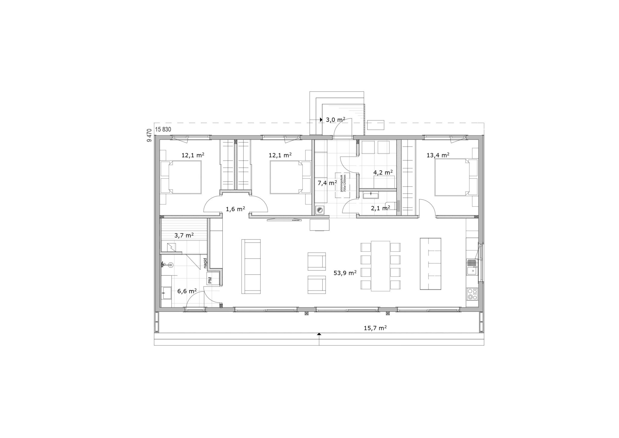
Elegua disainieesmärk on olnud kompaktse väikese palkmaja jaoks võimalikult kompaktse ja ruumika elamispinna loomine, mis muudab hoone oma tegelikust suurusest näiliselt tunduvalt suuremaks. Palkmaja magamistoad ja abiruumid on paigutatud maja tagaküljele ning avatud ühes stiilis puhkeruum avaneb kogu pikkuses maja hoovi poole. Maja välisarhitektuuris tasakaalustavad tänapäevased periskoopilised siseõuealad hoone mõlemal küljel olevat traditsioonilist katust.
Vaata, kuidas on võimalik palkmaja projekti vastavalt oma soovidele muuta!
Projekti saab ehitada nii liimpalkmajana kui ka CLT-elementmajana. Iga projekt on kohandatav vastavalt teie pere vajadustele, sealhulgas põrandaplaane ja -pinna suurust.
Olete oodatud Finnlogi tasuta konsultatsioonile!















