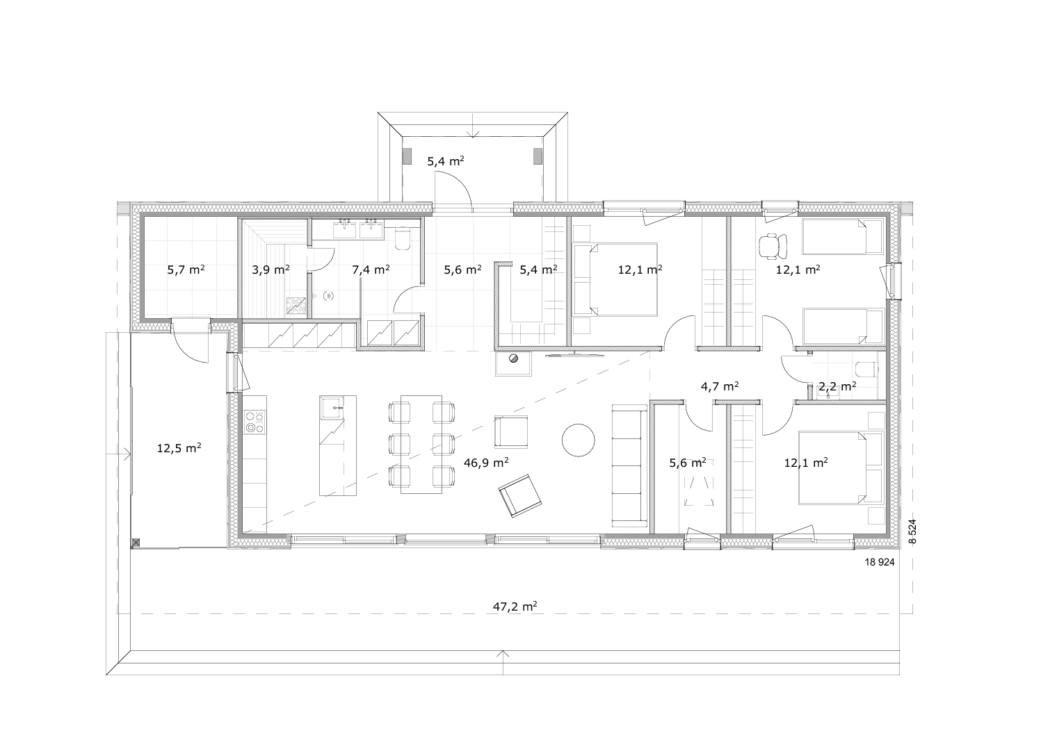
SAGA on täis väikseid üllatusi.
Kompaktse välisilme taga on peidus avara elutoa ja kolme magamistoaga elamu. Lisaks neile on hoonesse kavandatud erinevad hoiuruumid – avar poolavatud garderoob kohe välisukse juures ja eraldi panipaik ka magamistubade juures. Nii on igale asjale oma koht. Kui nii palju asju ei ole võib panipaigast kujundada hoopis koduhoolduse ruumi või väikse kodukontori – valik on sinu.
Majas ei puudu ka väike saun ja vajalikud pesu- ning wc-ruumid.
Mõnusaks kirsiks on hoovipoolne avar terrassiala, millest osa on ka katuse all (ja soovi korral klaasidega suletav) pääsuga otse köögist. Naudi loodust enda ümber mõnusalt ka siis, kui vihma sajab või sääsed tüütavad.
SAGA sobib nii linna kui ka suvemajaks metsatuka äärde.















