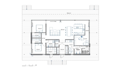
Melia on traditsioonilise vormi ja viilkatusega tänapäevane suvila, mille puhul püüab pilku elutoapoolse otsaseina klaasfassaad. Maja plaanilahendus on kõigiti suvemajalik: esimesel korrusel asub suur köögiga eluruum, mille ette jääb avar katusealune terrass. Elutoaga külgnevad kaks väiksemat magamistuba ja kompaktne saun. Elutoa klaasseinapoolne osa on katuslaeni avatud, ülejäänud katusealuse ruumi moodustab siserõduga magamislavats.
Vaata, kuidas on võimalik palkmaja projekti vastavalt oma soovidele muuta!
Projekti saab ehitada nii liimpalkmajana kui ka CLT-elementmajana. Iga projekt on kohandatav vastavalt teie pere vajadustele, sealhulgas põrandaplaane ja -pinna suurust.
Olete oodatud Finnlogi tasuta konsultatsioonile!





















