Ülgen – eraldi saunamajaga hoonete kompleks, mis sobitub hästi privaatsele kinnistule looduse keskel, et sulandada sise-ja välisruumi ühtseks tervikuks.
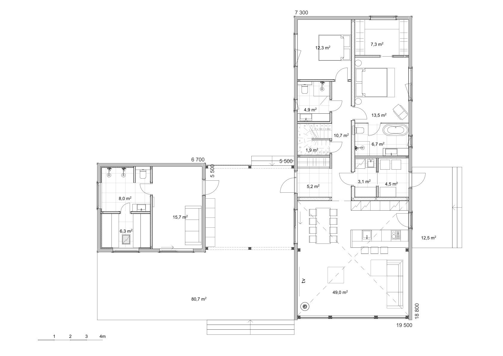
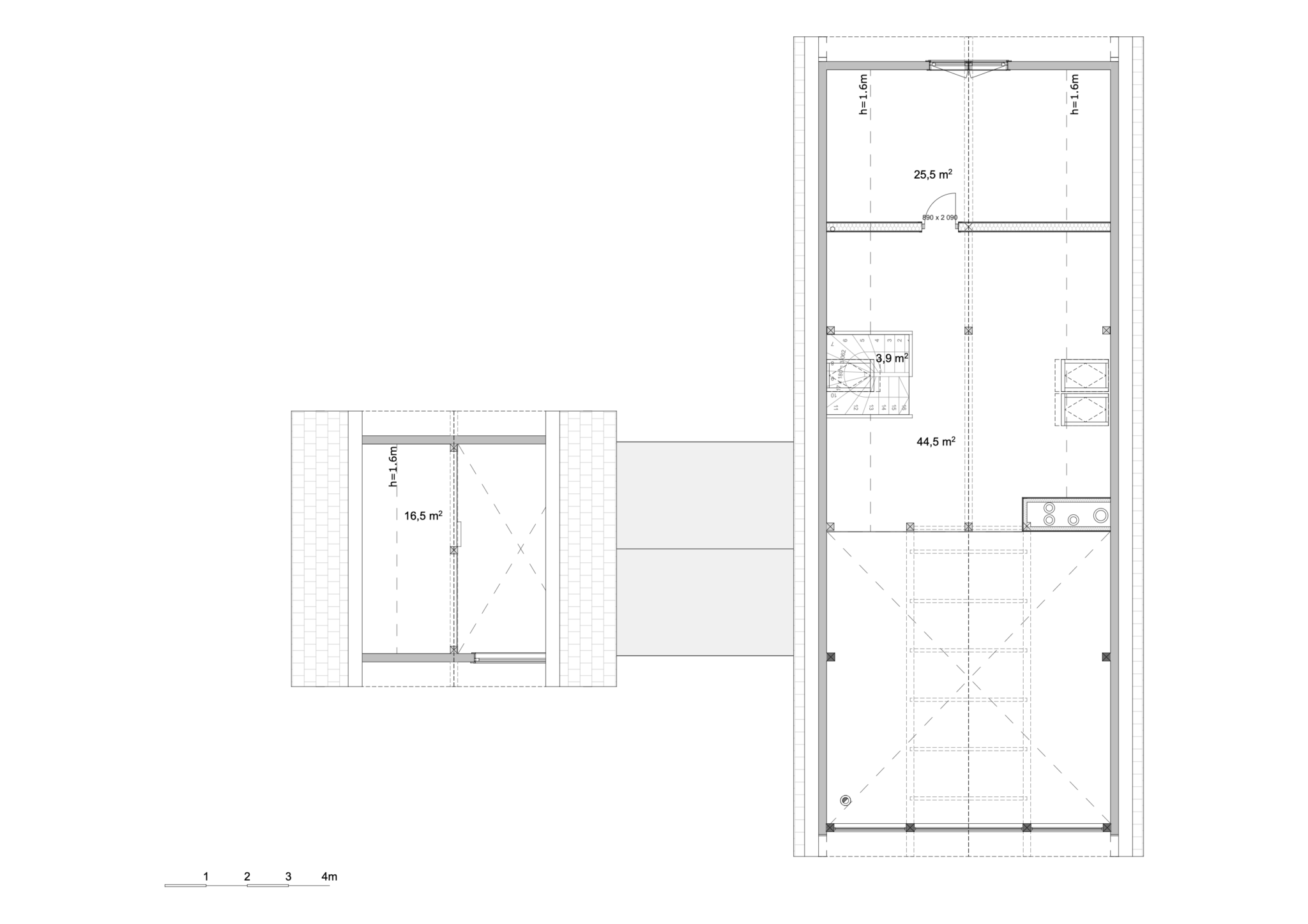
Ülgeni elumaja poolel leiame avara elutoa koos avatud köögiga, mis on otsafassaadis läbi korruste ulatuva klaasfassaadiga. Hoone esimesele korrusele on kavandatud kõik vajalikud funktsioonid – lisaks elutoale kaks magamistuba, pesuruumid ja garderoobid, tehniline ruum ning koduhooldus. Teisele korrusele on jäetud poolavatud katusekorrus, mis täidab vajadusel nii kodukontori, külalistetoa vms funktsiooni.
Eraldi saunamaja on hubane kompleks, kus lisaks eesruumile on pesuruum ning leiliruum. Avatud ruumis on kasutusele võetud ka katusealune lavats.
Hoone kahte poolt ühendab avar katusealune, mis kaitseb vihma ja tuule eest ning pikendab terrassi kasutusaega kevadest sügiseni. Lisaks katusega kaetud terrassile on ka avatud terrassiala, kus mõnusaid sooje suveõhtuid nautida. Samuti on kavandatud väike terrass köögi kõrvale, kus nautida hommikukohvi.





















