Projekt
Et sobitada maja erinevatesse keskkondadesse, kavandasime kihilise fassaadiga hoone. Selle välimust on võimalik lihtsalt varieerida, kasutades välises mittekandvas kihis mitut materjali.
Majal on kahe vastandliku hoone visuaalsed omadused: minimalistliku eramu väline kest on kaetud heleda vineerplaadistusega, tagasi astuvad kandeseinad on aga valmistatud Finnlogi liimpuitpalgist klassikalise palkehituse töövõtetega. See lahendus annab võimaluse paigutada hoone ka linnakeskkonda, kuhu traditsioonilise ilmega palkmaju ei saa kohalike ehitusmääruste tõttu rajada.
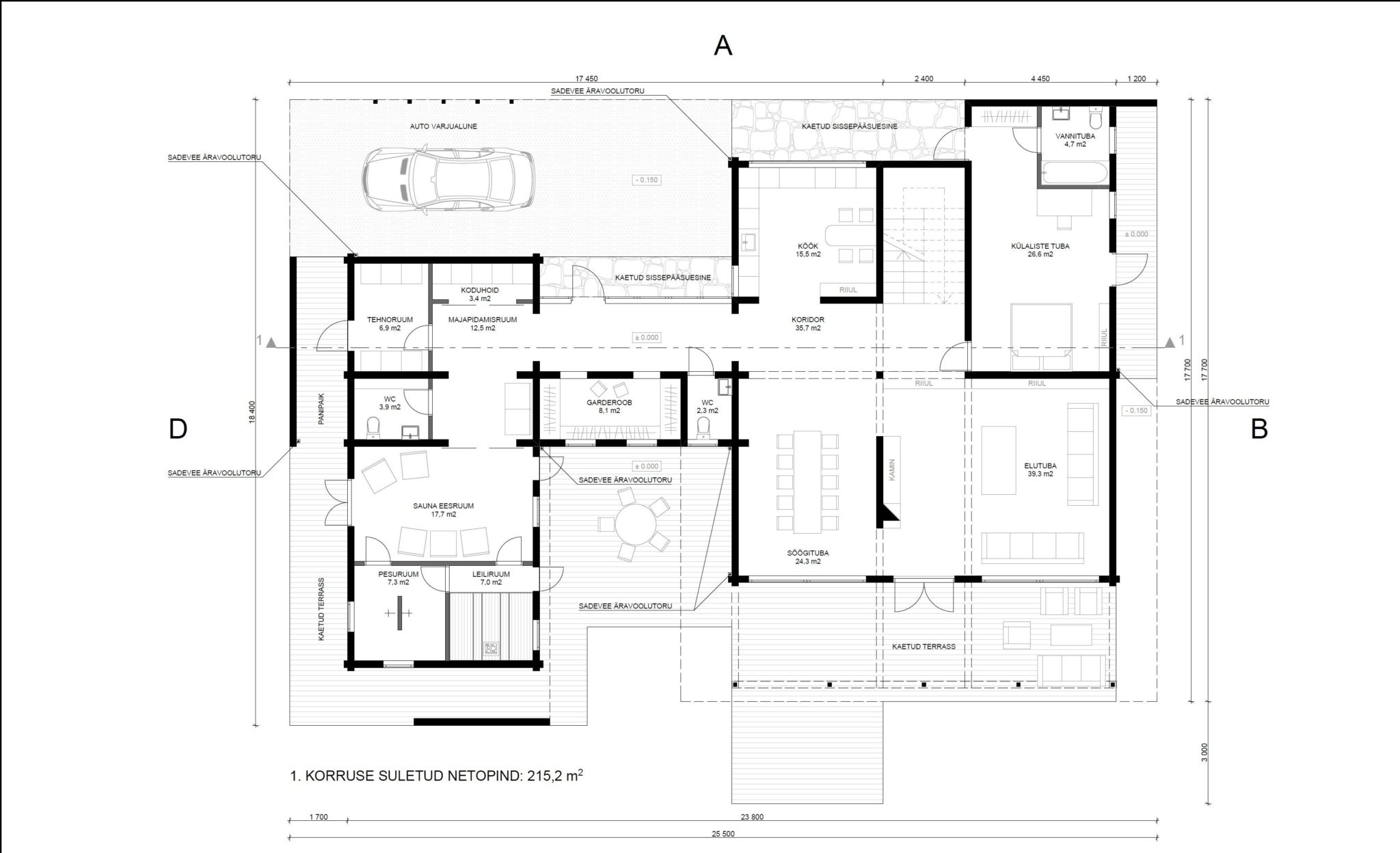
Hoone on ühepereelamu, mis koosneb kahest eristuvast osast: ühekorruseline saunaplokk ja kahekorruseline eluruumide osa. Projektlahendus on paindlik: maja keerates ja peegeldades saab seda paigutada mitmesugustele kruntidele ilma ideed ja kvaliteeti kaotamata. Sissepääsuala jagab hoone kaheks selgelt piiritletud osaks nii, et sauna, eluruume ja külalise tuba on võimalik kasutada korraga, ilma et eri funktsioonid üksteist häiriks.
Põhjapoolne fassaad on suletum, vähendamaks klaaspindade kaudu tekkivat soojakadu. Lõunasse vaatav hoovipoolne fassaad on ümbrusele avatum. Suured klaaspinnad, rõdud ja terrassid võimaldavad nautida loomulikku valgust ja vaateid eri suundadesse aasta läbi.
Autorid: Martin Kinks, Erkki Annama, Risto Parve
KARISMA arhitektid on 2008. aastal nelja noore arhitekti asutatud Eesti arhitektuuribüroo.
Meie tegevusväli katab objekte alates eramutest kuni avalike hooneteni. Töötades ühise meeskonnana, usume, et on võimalik parandada loovate lahenduste kvaliteeti. Teeme koostööd mitme eluvaldkonda esindajatega, et nihutada projektlahenduste piire laiapõhjalisemaks. Meie eesmärk on arhitektuur, mis sobib. Sobib inimestele, konteksti ja keskkonda.
Puit on materjalina olnud alati meie fookuses. Seepärast võtsime Finnlogi pakkumise vastu suurima heameelega.
Mis puidu puhul kõige enam paelub, on ehedus. Puit ei vaja ilustamist, katmist ega tugevdamist, kui teda kasutada targalt. Puidul on ülimad omadused, pealegi on tegemist äärmiselt säästliku materjaliga, mis hoiab nii keskkonda kui ka inimest. Seda materjali on hea katsuda, vaadata ja nuusutada: teda saab kogeda kõigi meeltega.
Martin Kinks
Arhitekt
Arhitektid: Martin Kinks, Erkki Annama, Risto Parve
Vaata, kuidas on võimalik palkmaja projekti vastavalt oma soovidele muuta!
Projekti saab ehitada nii liimpalkmajana kui ka CLT-elementmajana. Iga projekt on kohandatav vastavalt teie pere vajadustele, sealhulgas põrandaplaane ja -pinna suurust.
Olete oodatud Finnlogi tasuta konsultatsioonile!



















